Case Study: Percepto Drone Operations Center

Percepto Drone Operations Center — “The Vault”
How Xybix helped Percepto launch a flexible, collaboration-first drone ROC in Riviera Beach, FL.
About Percepto:
Percepto delivers holistic drone solutions that bring fully automated inspections and continuous monitoring to critical infrastructure worldwide. Backed by a visionary team in the U.S. and Israel, Percepto is redefining what’s possible in industrial automation, helping organizations stay safer, smarter, and always mission ready.
Background:
Percepto needed its first-ever Remote Operations Center (ROC) to support autonomous drone missions across the U.S. Guided by a consultant’s recommendation, they partnered with Xybix. From concept to installation, Xybix steered the project through six design rounds and a room change to deliver seven single surface workstations plus a supervisor station, with optimized sightlines to the video wall and branded details - all on time and under budget.
“This operation is unique, a new organization within Percepto. We’re piloting missions nationwide and needed a space built for collaboration, flexibility, and growth.” — Vanessa |
The Challenge:
- Design the company’s first ROC
- Maximize operator capacity within a fixed footprint
- Enable close collaboration between pilots working in teams
- Maintain clear sightlines to a shared video wall
- Balance customization with a tight budget for a brand-new program
The Solution:
“Customizable down to the last detail… and the attention to detail meant our pilots could work their best.” — Vanessa |
- Workstations: Single-surface tables with CPU hangers (more personal space + tighter overall footprint)
- Capacity: 7 operator stations + 1 supervisor station with clear oversight
- Visibility: Aligned bays and desk orientation to maintain sightlines to the video wall
- Branding: Lit acrylic logo panels for immediate identity and team pride
- Monitors: Configurable mounts to test stacked vs. side-by-side layouts before finalizing
- Budget Fit: Feature prioritization (e.g., arcs without Rollervision, initially) to meet budget now and enable upgrades later
The Designer:
“Sightlines, a supervisor station, and branded details were must-haves in this design ” — Meghan Dinardi |
|
Initial Design
The project began with a request for six dual-surface workstations with CPU cabinets. To explore options, Xybix provided two layout concepts, one featuring the requested dual-surface desks and another showcasing single-surface tables with CPU hangers. This “compromise” not only offered a distinct footprint for the room but also gave each operator more personal space, setting the stage for collaborative design discussions.

Initial Concept 1

Initial Concept 2

Single Surface Alternative Concept 1

Single Surface Alternative Concept 4
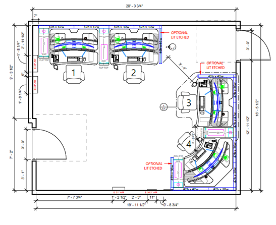
First Round of Revisions
After the space was verified, wall constraints limited how the workstations could be arranged. To adapt, Xybix developed three new layout options featuring 3 - 4 desks in a mix of single and dual-surface configurations. At the same time, Percepto emphasized the importance of reinforcing their brand, leading to the integration of lit acrylic accents into the updated designs.

Revision 1, Concept 1

Revision 1, Concept 2

Revision 1, Concept 3

Revision 1, Concept 4

Revision 1, Concept 5

Revision 1, Concept 6
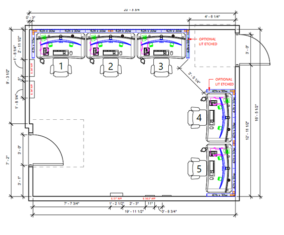
Second Round of Revisions
As a preferred layout was chosen, the projected shifted, Percepto needed more operator stations and decided to incorporate a dedicated monitor wall. The original room proved too small to accommodate both features, prompting a move to a larger space. At the same time, project ownership transitioned from consultant to Vanessa, the operations center manager, who stepped in to guide the next phase of design.

Revision 2, Concept 1

Revision 2, Concept 2
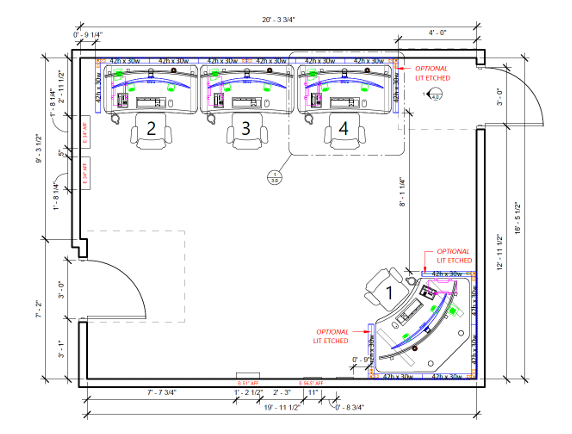
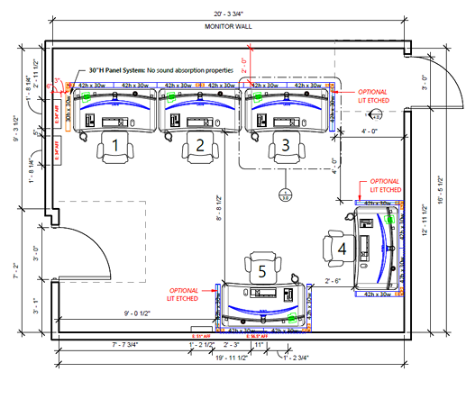
Final Designs:

Final Design 1

Final Design 2
Key design features that support teamwork and operator experience:
“Just having a room dedicated to us, built for us, brings pride and motivation—and it’s more conducive to efficiency.” — Vanessa |
- Move-friendly seating and station swap flexibility
- Shared sightlines to the video wall for situational awareness
- Ergonomic sit-to-stand to reduce fatigue during long missions
- Personalized task lighting and environmental control to keep operators alert
- Branded details and operator input gave the team true ownership of the space
Percepto drone pilots share their opinion on their new Xybix desk:
Percepto drone pilots share their opinion on their new Xybix desk:
Budget, Efficiency, and Future-Proofing
“We stepped through every line item together, kept what mattered, deferred what didn’t. That’s what got it approved.” — Justin Terwilinger |
Xybix and Percepto co-prioritized features to deliver under budget without sacrificing performance.
- Right-now essentials: capacity, sightlines, monitor flexibility
- Deferred upgrades: certain platform components (e.g., Roller Vision) slated for phase-two if needed
- Outcome: A fully customized, mission-ready ROC with a clear path to scale
Results at a glance:





Justin with Xybix Interviews Vanessa from Percepto

- Align on vision early with leadership - purpose, brand, feel
- Engage operators - test monitor layouts & workflows before you buy
- Design for collaboration - pair work, shared situational awareness
- Prioritize features now, keep a runway for upgrades later
- Protect sightlines to shared displays
You can download a portfolio of our favorite command center installs here.
Remodeling or creating a control room? Let’s design it together!